| じゅうたん張替え工事 |


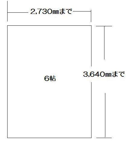
ホームページからサンゲツ・サンライム6帖のプランでの問い合わせによりご依頼となりました。 |


カーペットをはがし、フェルトの状態です。 |

続いてコンクリートの床面にボンドで接着してあるフェルトをはがし、掃除をします。 |

防虫フェルトを施工後、カーペットを敷き込みます。 |


完成引き渡し 商品ページは下記参照 |






| じゅうたん張替え工事 |
ホームページからサンゲツ・サンライム6帖のプランでの問い合わせによりご依頼となりました。 |


カーペットをはがし、フェルトの状態です。 |

続いてコンクリートの床面にボンドで接着してあるフェルトをはがし、掃除をします。 |

防虫フェルトを施工後、カーペットを敷き込みます。 |
完成引き渡し 商品ページは下記参照 |